Loading

Chomedey

General Information

Dimensions Medium (800sq.ft à 1200sq.ft)
Nb of floors Single-story
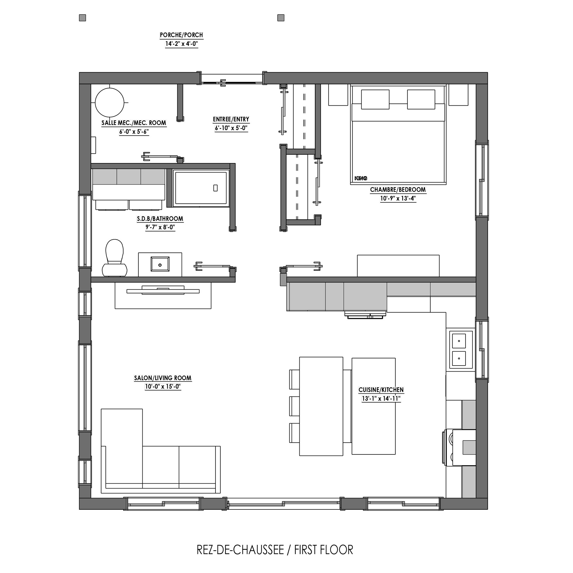
Nb of rooms 1 Bedroom
Nb of bathrooms 1 Bathroom

Technical Sheet

  • Available Dimensions:
    • 28′ x 30′
  • Walls: Flat or half-round exterior finish, Wall height 9’ 1’’, Insulation R-30.
  • Roofing: Insulation R-45, Roof pitch 3/12.
  • Exposed Structures: Roof and rear porch with exposed beams.

Wall Structure:

  • Pre-cut and numbered Thermologs.
  • Hardware, insulation, and sealants included.
  • Solid corners and moldings for finishing.

Roofing:

  • Exposed beams, rafters, and ridge beams.
  • White pine ceiling covering.
  • Rigid insulation and vapor barriers.
  • Front gable decoration.
  • Visible fastener steel roofing with accessories.

Rear porch:

  • Complete structure with exposed beams and white pine tongue-and-groove ceiling.

Doors and Windows:

  • PVC/Vinyl windows with double glazing and argon gas
  • Steel entrance door and aluminum patio door.
  • Moldings for exterior doors and windows.
  • Membranes, shimming blocks and flashings.

Not included: jamb extensions, handles, door locks.

Plan Design

We offer several design packages tailored to different needs and budgets. Explore our packages and choose the one that suits you best.

Learn more

Prices starting from :
PURE GENERIC Free
ADAPTED GENERIC 1200$
CUSTOM GENERIC 2500$
PURE CUSTOM 5000$
Contact us

Price

Prices are subject to change without notice. Prices displayed in-store take precedence.
Transportation and taxes not included.

Prices starting from :
28' x 30' (R-30) 96 078$
Contact us

Virtual tour

This Chomedey retains the essence of the original model while adopting a minimalist, uncluttered and functional style. Every space has been designed to reflect the customer’s tastes and maximize simplicity and comfort.

Assembly options

Owner-Builder

Ideal for the do-it-yourself builder and the most cost effective option!
All of Boreal’s models are offered as a self-build kit. You can take charge of the assembly of your building thanks to the ingenuity of the construction method and the quality of the fabrication.

But you are never alone! We provide you with a technical manual illustrating each step for assembling your project. You will also find a collection of technical videos on our website explaining the assembly techniques. If you have any questions, we are only a phone call away.

Your Boreal building will be delivered on the site of your choice. As is the case for all our kits, the basic models can be modified according to your preferences. You can therefore select the type of exterior siding you prefer: the rustic charm of the half-log or a chic flat profile.

To summarize the advantages of the owner-builder kit:

1. Time and assembly cost savings
2. The most affordable new build
3. Training to assemble your project
4. A technical manual and videos to assist you
5. Telephone support during construction

All of Boreal’s advantages:

1. Unprecedented insulation performance
2. Unequalled construction stability
3. Easy assembly without heavy equipment
4. Grandiose timber-frame structures
5. Can be tailored to any style or dimensions

 

Shared Assembly

Affordable professional assistance.

All of Boreal’s models are provided as a “shared assembly” kit. You stay in charge of your build and choose what you want to DIY and what you prefer to delegate. While Boreal does not perform construction, we can connect you with trusted general contractors and skilled trades who are familiar with our system. You decide who does what.

This is an “à la carte” option to help you construct your home. You can work with an experienced team during the assembly steps you prefer we handle all while saving on the other tasks you want to take care of yourself.

Your Boreal building will be delivered on the site of your choice. As is the case for all our kits, the basic models can be modified according to your preferences. You can therefore select the type of exterior siding you prefer: the rustic charm of the half-log or a chic flat profile.

To summarize the advantages of the shared assembly kit:

  1. The advantages and affordability of an “à la carte” build
  2. Access to specialized tools and equipment
  3. A technical manual and videos to assist you
  4. Telephone support during construction

All of Boreal’s advantages:

  1. Unprecedented insulation performance
  2. Unequalled construction stability
  3. Easy assembly without heavy equipment
  4. Grandiose timber-frame structures

Assembled Shell

** AVAILABLE ONLY WITH OUR DISTRIBUTORS AND / OR GENERAL CONTRACTORS IN CERTAIN REGIONS **

Maximum control but peace of mind !

Depending on your region of Quebec, Boréal may refer you to certified general contractors who will be able to offer you the construction of your building in an “assembled shell” package or if you are doing business with one of our distributors, he will be able to offer you his own service or refer you to a contractor in your area. The installation team will assemble the floors, frame, roof and other structural elements of the building, on the foundation you have previously built. You then have full control over the selection and installation of cabinetry, plumbing, electrical, siding and interior finishing.

This package ensures you construction at your own pace. The assembled shell gives you the freedom to choose your own workforce and materials to reduce costs or to take advantage of other related benefits, according to your own schedule.

Your Boréal building will be delivered to you at the location of your choice. As with all our sets, the basic models can be modified to your liking. You will be able to choose the type of exterior covering that you like the most; the charm of the rustic half-round or the chic flat profile.

Let’s summarize the advantages of the assembled shell package:

1- The possibility of building your home at your own pace.
2- Ensuring compliance with Boréal assembly techniques.
3- A manufacturing guarantee on labor.
4- A technical guide and videos to accompany you.
5- Phone support during construction.

All the advantages of Boréal Products:
1- Unprecedented insulation performance.
2- Unequaled construction stability.
3- Easy assembly without heavy equipment.
4- Grandiose timber-frame structures.

[chatbot]